Ce cours s’organise en continu sur les quatre premières années du cursus.
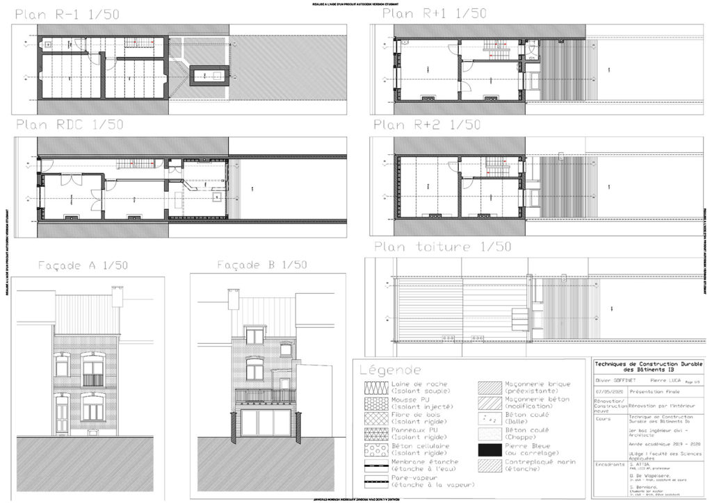
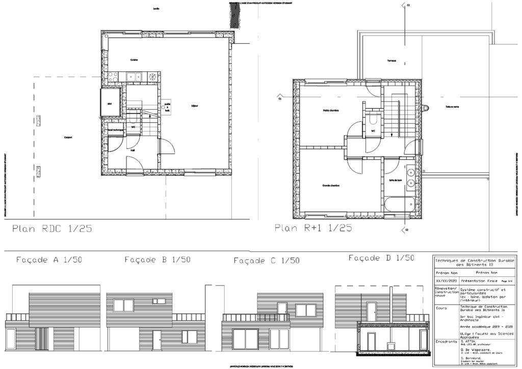
En première année du bachelier, il s’agit pour les étudiants d’acquérir les bases constructives. Il leur est demandé d’instruire et de concevoir la manière de réaliser la construction ou la rénovation d’une habitation simple. Chaque exercice donné pour résolution aborde les mêmes thèmes et niveaux de complexité, mais appliqués à des cas concrets différents. Ainsi, chacun a un cas unique à résoudre mais peut en parallèle s’enrichir de réflexions communes avec d’autres de la classe. Cette manière de faire permet d’aborder la matière de manière plus complète, détaillée et immersive. Le résultat final consiste en la production de plans, coupes et élévations générales ainsi que la production d’une série de détails prédéfinis à l’avance. L’ensemble a pour but d’être présenté tel un dossier potentiellement transmissible à un entrepreneur de la construction pour une remise de prix ou un plan de mise en oeuvre.
Au fil de la seconde année du bachelier, les étudiants étudient de manière approfondie les techniques du bâtiment en termes de performances de l’enveloppe et de certains systèmes énergétiques associés. L’étude des sujets suivants est abordée: le bilan énergétique d’un bâtiment, la réglementation énergétique, l’hygrothermie du bâtiment ainsi que l’évaluation du confort des occupants.
En troisième année, le cours introduit de manière théorique les critères techniques et les concepts constructifs et matériels de bâtiments durables, ainsi que l’enjeu d’intégration des réseaux dans le processus de conception. Des réflexions sont menées en groupes autour d’un cas d’étude de référence afin de donner un relief pratique aux propos théoriques. Le cours s’articule également autour d’un projet de conception et de production des plans d’exécution d’un bâtiment. Ce projet vise l’intégration des installations techniques en rencontrant des objectifs à la fois fonctionnels, constructifs et performanciels. Le cours comprend l’étude de différents types de systèmes : le sanitaire, le chauffage, la ventilation et la climatisation, l’électricité et l’éclairage, la protection contre l’incendie et la sécurité.
Enfin, en quatrième année (Master 1), les étudiants approfondissent l’application des techniques de construction aux cas spécifiques de bâtiments à rénover, en particulier ceux issus de la période Moderniste.









